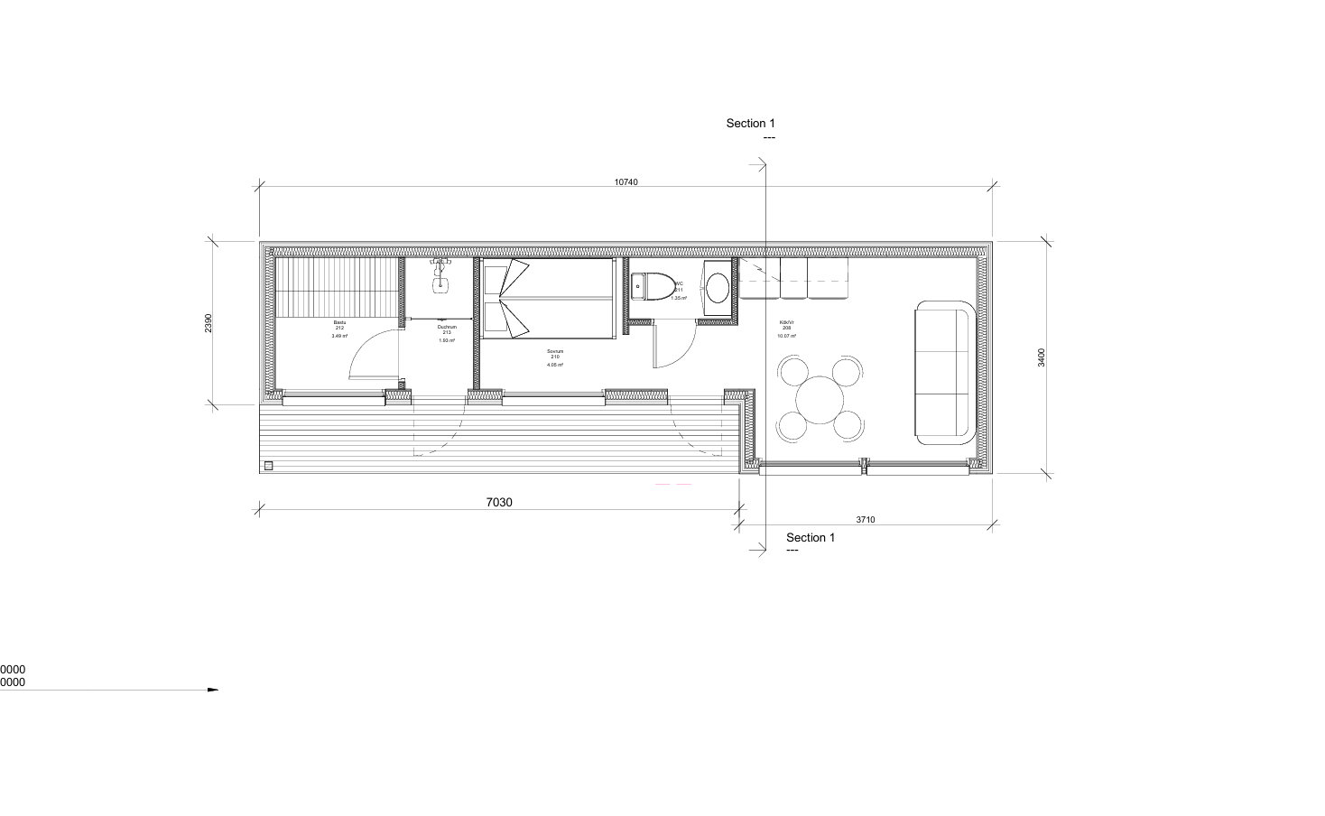
How It Works
Ordering a Klara home is simple and transparent. We offer one optimized model — designed to fit on a standard trailer, maximize interior space, and deliver the best possible price without compromising Nordic quality. A fully equipped module starts from €75,000 + delivery. Groundwork is not included, and transport is priced by destination. No hidden extras — the kitchen, bathroom, interior doors, and essential fittings are all included.

Order Online
Get in touch through our contact form to request a free, no-obligation quote. After you submit your details, we’ll reach out with a personalised offer, clarify any options, and guide you through the next steps. The model is pre-designed and optimized — no complicated decisions.
Built in Finland
We begin production as soon as your order is confirmed. Thanks to our optimized model, construction takes 12–15 weeks. Your home is built by experienced Finnish craftsmen following Nordic building traditions. Each module is completed indoors, fully finished, and inspected before transport.
Delivered
Once ready, the module is loaded onto a standard trailer and delivered anywhere in Europe. Delivery typically takes 1–2 weeks depending on destination. The home is unloaded by crane, and transport costs are quoted individually.
Connected & Ready
Upon arrival, your home is lifted into place and connected to electricity and water. Within just a few hours, your Klara module is fully ready — step inside and start living.
Model Gallery




